[ECONOMIE] Deux ateliers relais à louer sur le territoire
Deux ateliers relais disponibles à la location sur le territoire
La Communauté de Communes Sud Retz Atlantique propose deux ateliers relais à la location, disponibles dès maintenant. Ces dispositifs ont pour vocation d’accompagner les entrepreneurs dans leur développement en leur offrant des locaux adaptés à leurs besoins, assortis de loyers progressifs.
➡️ Atelier relais n°2 de Legé – Parc d’Activités Nord

📍1, rue des Frères Lumières au sein du Parc d’Activités Legé Nord
L’Atelier 2 propose une surface totale de 142 m², comprenant 116 m² d’espace atelier ainsi que 26 m² dédiés aux bureaux, WC, local douche et local technique.
🪙Le loyer est fixé à partir de 568 € HT/mois
Augmentation annuelle selon une grille progressive : 4 € HT/m²/mois les deux premières années, 6 € HT/m²/mois les troisième et quatrième années, puis 7 € HT/m²/mois à partir de la cinquième année.

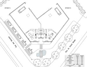
➡️ Atelier relais de La Marne – Parc d’activité du Grand Moulin

📍 305, rue du Grand Moulin à La Marne
Le Bâtiment B offre une surface totale de 267 m², dont 208 m² d’atelier et 59 m² comprenant bureaux, sanitaires, cuisine et vestiaire.
🪙 Le loyer est fixé à partir de 1 068 € HT/mois
Augmentation annuelle selon une grille progressive progressive : 4 € HT/m²/mois les deux premières années, 6 € HT/m²/mois les troisième et quatrième années, puis 7 € HT/m²/mois à partir de la cinquième année.

A savoir : Les loyers sont susceptibles d’évoluer en fonction de l’indice des loyers de l’INSEE.
Comment candidater ?
Vous êtes entrepreneur et l’un de ces ateliers correspond à votre projet ? Contactez le service Développement économique de la Communauté de Communes pour obtenir plus d’informations : c.danet@ccsudretzatlantique.fr
_____________
Tenez-vous à jour des évolutions du foncier sur le territoire ➡️ Les parcs d’activité Sud Retz Atlantique – Entreprises


